危廢焚燒生產線
周先生:13906278080
電話:0513-88400999 傳真:0513-88400998 郵箱:13906278080@139.com
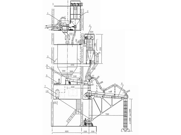
該危廢焚燒生產線成套系統具有DuTe金屬密封結構,耐火材料及砌筑工藝,多氣流環繞空氣分配技術以及無二次污染的先進尾氣處理系統等;并可根據用戶要求,采用手動,半自動及全自動控制技術和在線監視與監測技術。
主要技術參數
處理量:5、8、10、15、20、30、40噸/日
爐溫:800~1200℃;
高溫煙氣停留時間:≥2S;
燃燒效率:≥99.9%;
有毒有害物質焚毀去除率:≥99.99%;
焚燒殘渣的熱灼減率:<5%;
醫療廢物回轉窯處理成套系統
江蘇中礦通過多年的潛心研究和技術開發,形成了以回轉窯、熱解爐焚燒技術處理醫療廢物的完整技術。該成套設備以適用性廣、有害成分破除率高、設備自動化水平高、可長期連續運轉等特點,被國內外廣泛應用。現已在北京市、福建省、河北省等多地建有示范工程,均已通過煙氣二噁英類分析測試。

核心技術
回轉窯成套設備有兩個燃燒室,適于大規模集中處理醫療廢棄物。廢棄物通過高溫燃燒,達到徹底滅菌、消毒、除臭的目的,配置余熱利用系統和完整的尾氣處理設備,構成運行可靠的煙氣處理系統,具有無二次污染、灰渣少等優點,排放符合國家標準《危險廢物焚燒污染控制標準》和《醫療廢物焚燒爐技術要求》。先進的自控技術保證設備運行安全可靠,運行成本低,經濟效益十分顯著。
設計工藝
主要焚燒設備:回轉窯+二燃室+換熱設備+尾氣處理設備;
尾氣凈化:噴霧吸收塔+活性炭吸附+高效袋式除塵器;

上一頁:脫硫石粉粉磨生產線
下一頁:
產品關鍵詞:危廢焚燒生產線



.jpg)
.jpg)





